| 1. Size |
| |
2000mm~4000mm
¡ØOther size are available on request. |
| 2. Working Pressure |
| |
Max. 10mAq (20mAq and higher water level are available on request.) |
| 3. Fluid |
| |
Water |
| 4. Main Material |
| |
Skin Plate :
SS400
Support Beam :
SS400
Main Roller Ass'y :
ASS'Y
Side Roller Ass'y :
ASS'Y
Packing Ass'y :
EPDM/STS304
Rack Bar :
SS400/S45C
Upper Seal Beam :
STS304
Side seal Beam :
STS304
Support Beam :
SS400
Anchor Bar :
SS400
¡ØOther materials are available on request.
|
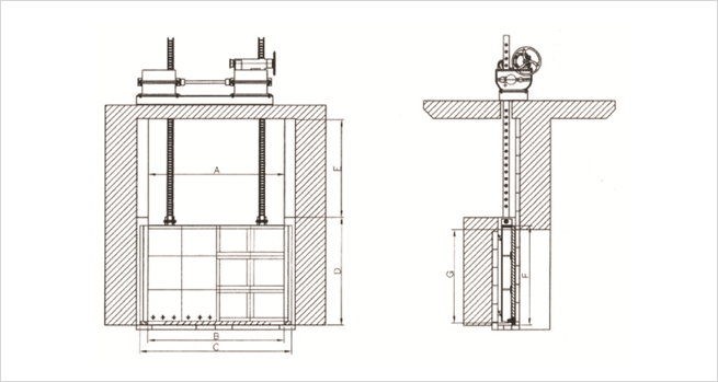
| |
Unit : mm |
| |
| Model No. |
Size
(A x G) |
B |
C |
D |
E |
F |
HOIST |
| RG-1000-00 |
1000 x 1000 |
1200 |
1220 |
1100 |
1150 |
1050 |
3 Ton |
| RG-1100-00 |
1100 x 1100 |
1300 |
1320 |
1200 |
1250 |
1150 |
3 Ton |
| RG-1200-00 |
1200 x 1200 |
1400 |
1420 |
1300 |
1350 |
1250 |
3 Ton |
| RG-1300-00 |
1300 x 1300 |
1500 |
1520 |
1400 |
1450 |
1350 |
3 Ton |
| RG-1400-00 |
1400 x 1400 |
1600 |
1620 |
1500 |
1550 |
1450 |
3 Ton |
| RG-1500-00 |
1500 x 1500 |
1700 |
1720 |
1600 |
1650 |
1550 |
5 Ton |
| RG-2000-00 |
2000 x 2000 |
2200 |
2220 |
2100 |
2150 |
2000 |
5 Ton |
| RG-2500-00 |
2500 x 2500 |
2700 |
2720 |
2600 |
2650 |
2500 |
7.5 Ton |
| RG-3000-00 |
3000 x 3000 |
3200 |
3220 |
3100 |
3150 |
3000 |
7.5 Ton |
| RG-3500-00 |
3500 x 3500 |
3700 |
3720 |
3600 |
3650 |
3500 |
10 Ton |
| RG-4000-00 |
4000 x 4000 |
4200 |
4220 |
4100 |
4150 |
4000 |
10 Ton |
|